Casa vacanze: Villa Camelia nella Pineta di Marina Castagneto Carducci
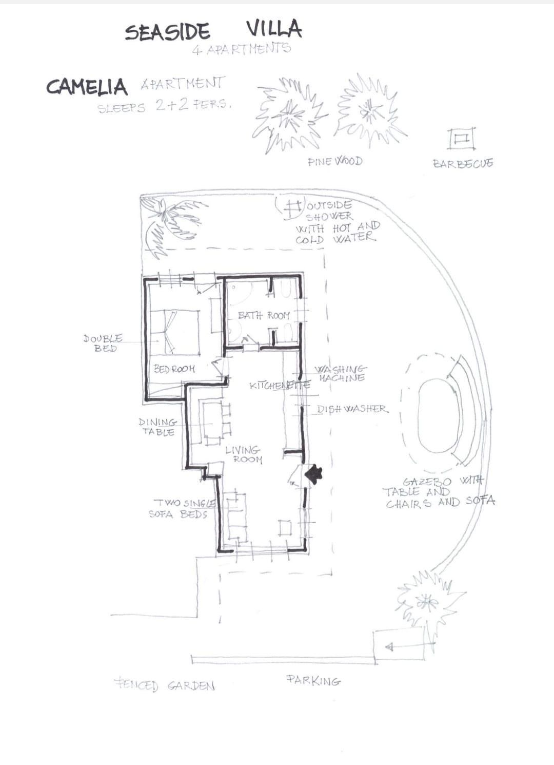
L'appartamento è uno dei quattro che compongono la Villa sotto pini secolari con un bel giardino a boschetto e con ampi spazi per auto. L'Appartamento CAMELIA si trova al piano terra ed ha una superficie di circa 50 mq ed un ampio spazio per soggiornare all'esterno sotto un gazebo in ferrobattuto. Gli ospiti possono raggiungere facilmente, anche a piedi, il mare di Marina di Castagneto Carducci, qui si trova la spiaggia privata dove è possibile immergersi letteralmente in un paradiso terrestre. Infatti l'Oasi naturale La Soldanella dove si trova la spiaggia con accesso privato è tutelata, qui crescono e prolificano numerose specie vegetali e animali autoctone che qui sono protette. L'Oasi La Soldanella ha libero accesso solo agli ospiti di Villa Peonia e altre poche nostre ville. All'interno dell'Oasi si trovano tavoli e panche per pic nic ma anche amache, sdraio e ombrelloni per la spiaggia.

Posti letto
WI-FI
Posto auto
Piscina / solarium
L'ingresso dell'appartamento va dal giardino nel soggiorno dove troviamo un divano letto in grado di ospitare due persone (con due letti singoli), sulla destra troviamo un angolo cottura comprensivo di tutto ciò che è necessario per cucinare ed anche con forno a gas, 4 fornelli a gas, frigo, freezer, tostapane, macchina da caffè sia italiana che tedesca.
Davanti all'angolo cottura c'è un tavolo con panche ad angolo che può ospitare fino a sei persone.
Oltre alla porta d'ingresso in questa stanza ci sono altre due porte, la seconda porta fornisce l'accesso ad un bagno con doccia e l'ultima porta dà nella camera con letto matrimoniale ed un armadio. Da questa camera è possibile uscire nel giardino ritornando all'entrata principale.
L'arredamento di tutto l'appartamento è in pino di Svezia ed è particolarmente curato.
A disposizione per soggiornare nell'ampio giardino c'è un gazebo con sedie e divano in ferro batuto, un tavolo in pietra e due poltrone sdraio, una doccia con acqua calda e un barbeque.
A disposizione riscaldamento autonomo con termosifoni.


























