Casa vacanze: Villa Fresia nel bosco di Sassetta
Questo appartamento è situato al piano terra ed è ubicato sul lato nord della casa. L'appartamento giace sulla cima di una collinetta in un bosco di castagni in località Valcanina a Sassetta (LI) in un parco di m.q.2000. ll parco è ricco di molte varietà di piante che sono segnalate e catalogate come un orto botanico. La casa é situata a 500 mt. sul livello del mare ed è distante dal paesino di Sassetta circa 800 mt.; il mare di Marina di Castagneto è distante 12 km e sotto questo punto di vista il luogo è ideale per un relax completo; rispetto alle pianure circostanti in questo posto la temperatura è sempre più bassa di 3 o 4 gradi. Al mare di Marina di Castagneto Carducci gli ospiti hanno libero accesso alla spiaggia dell'oasi naturale La Soldanella, un vero paradiso terrestre dove si trovano tavoli e panche per pic nic, amache, ombrelloni e sdraio. La casa è lussuosa, di nuova ristrutturazione, i pavimenti sono chiari e sono gli stessi in tutti gli appartamenti come i rivestimenti delle cucine e dei bagni, le rifiniture sono molto curate e rispettose dell'ambiente circostante.

Posti letto
WI-FI
Posto auto
Piscina / solarium
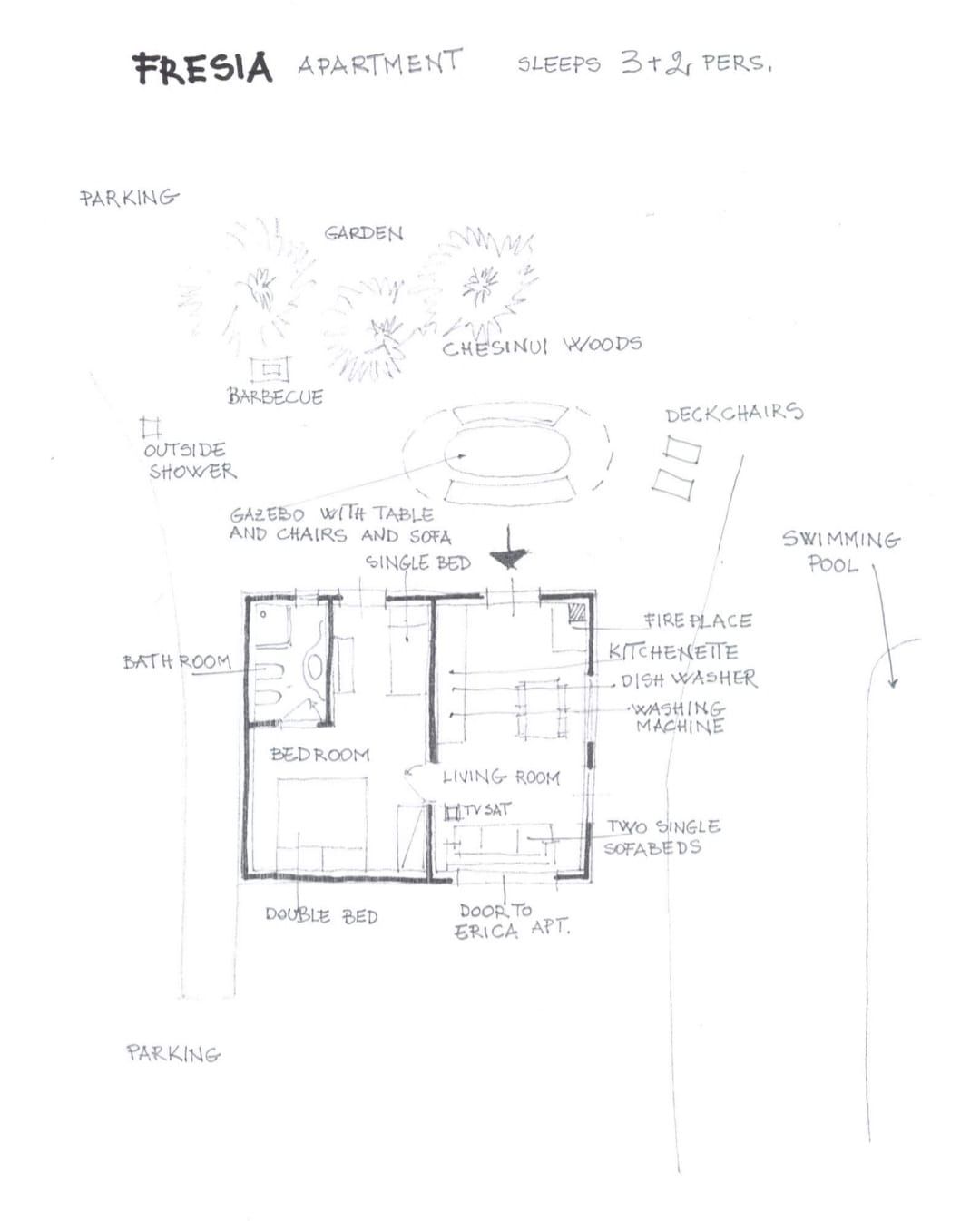
Dal giardino lato nord si entra nel soggiorno e davanti a questo ingresso all'esterno si trova un gazebo con divani in ferro battuto, comodi cuscini, un tavolo in pietra e due sdraio, una doccia esterna ed un barbeque.
Appena entrati nel soggiorno sulla destra troviamo l'angolo cottura con tutto il necessario per cucinare, la lavastoviglie, il forno a gas, i fornelli a gas, il frigo con il freezer ed una lavatrice.
Davanti alla cucina troviamo un caminetto ed un tavolo in legno con sei sedie. In questo soggiorno abbiamo a disposizione anche un divano letto in grado di ospitare due persone (con due letti singoli). Da questa stanza possiamo entrare nella camera da letto dove c'è un letto matrimoniale più un letto singolo ed una culla, dalla camera entriamo nel bagno con cabina doccia che è rifinito con le stesse mattonelle del pavimento.
Nel soggiorno c'è anche una porta che rimane chiusa e che volendo può mettere in comunicazione i due appartamenti del piano terra.
Il grande giardino intorno ha a disposizione spazi per le auto.
































