Casa vacanze: Villa Il Castagno nel bosco di Sassetta
La Villa nel Bosco di Sassetta è in località Valcanina in un bosco secolare, a mt. 500 sul livello del mare. Villa è un perfetto ritiro per chi vuole ristabilire una connessione forte con la natura e con se stesso. La Villa ha una grande piscina condivisa con Villa La Quercia. Ha ampio parcheggio e 500 mq di giardino con illuminazione notturna. a 800 mt si trova il centro del Borgo di Sassetta e a 12 km il mare di Marina di Castagneto Carducci dove si trova l'esclusiva spiaggia privata all'interno di una oasi naturale denominata La Soldanella, un vero paradiso terrestre dove le specie autoctone sono tutelate e preservate e dove, comunque, è possibile passare giornate sulla spiaggia e in un mare cristallino e incontaminato. All'interno dell'oasi possono accedere solo i nostri ospiti che qui trovano aree attrezzate per pic nic, docce, ombrelloni, sdraio e amache.

Posti letto
WI-FI
Posto auto
Piscina / solarium
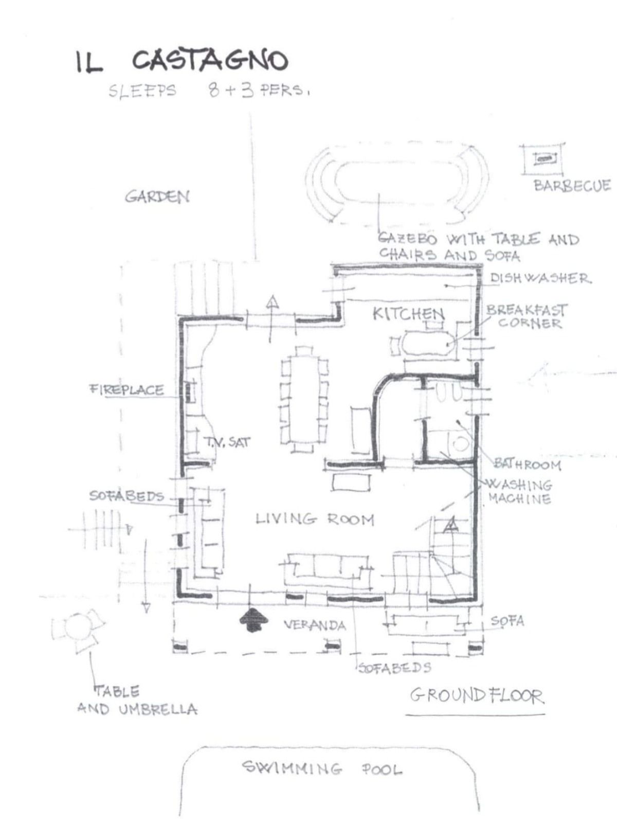
La Villa di 160 mq èsuddivisa tra piano terra e primo piano.
L'ingresso al piano terra introduce in un grande soggiorno dove troviamo:
- due divani letto molto comodi ed in grado di ospitare ciascuno due persone (con due letti singoli)
- un tavolo da pranzo grande in legno
- in fondo sulla destra troviamo la cucina con tto il necessario per cucinare e poi la lavastoviglie, tostapane, bollitore, macchina da caffè italiana e con filtro,il forno a gas, i fornelli a gas ed il frigo con il freezer; davanti alla cucina troviamo un tavolino in legno con panche in legno ad angolo
- in fondo sulla sinistra troviamo un grande camino in travertino
- il grande soggiorno ha due porte finestra, da quella posteriore si accedeal giardino posteriore dove, accanto al barbecue, è possibile mangiare all'aperto oppure riposare in tranquillità sotto un elegante gazebo in ferro battuto provvisto di un grande tavolo in travertino e sedie in ferro battuto rivestite di comodi cuscini. Dalla porta finestra anteriore si accede invece alla piscina molto grande e allestita con ombrelloni, sdraio, tavoli e sedie.
- appena entrati, sulla destra c'è una porta oltre la quale si trova un antibagno ed un bagno di servizio dove troviamo anche una lavatrice.
Salendo le scale dal soggiorno arriviamo al primo piano dove sulla sinistra troviamo due poltrone letto, un armadioed una porta finestra che si apre su un balcone. Questo è esposto sulla parte anteriore della casa e si affaccia sulla piscina.
A destra e davanti troviamo tre porte attraverso le quali entriamo in tre camere ciascuna con bagno e doccia. nella prima camera a sinistra abbiamo un letto matrimoniale, un letto singolo ed un armadio, nella seconda camera abbiamo un letto matrimoniale, una poltrona letto ed un armadio, nella terza camera abbiamo un letto matrimoniale, un letto singolo, una cassiettera ed un armadio. A disposizione una culla. Dalla seconda e dalla terza camera è possibile accedere ad un balcone comune ad entrambe che si affaccia sulla Valcanina e sul Borgo di Sassetta.
A disposizione riscaldamento autonomo con termosifoni
































